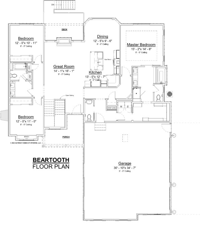
Beartooth

The stunning Beartooth floor plan offers some of the most expansive square footage of all Gateway homes. Escape to the private primary wing, separate from the other bedrooms and featuring a luxurious primary bath. The main floor primary closet is conveniently connected to the main floor laundry room. An oversize side-entry garage boasts lots of windows and plenty of space for work areas.

Beartooth Designer

Floor Plan Styles

Comfort

3

Bedroom

2

Bathroom

2 or 3

Garage

1,986

Sq ft

Unique Features

  • Minimum 9-foot main floor walls (per plan)
  • Therma-Tru® fiberglass half-lite one-panel entry door
  • American Woodmark® Denver 5-piece stained cushion-close cabinets
  • Quartz countertops with full tile backsplash in kitchen
  • Undermount stainless workstation kitchen sink
  • LG® energy-efficient stainless appliance package with side-by-side refrigerator
  • Traditional Delta® kitchen & bathroom faucets
  • Fiberglass tub or pan in primary bathroom with tiled shower walls
  • Traditional 2-panel painted interior doors
  • Traditional-style 2¼” door casing with 3½” head casing  & 5″ floor base
  • Traditional-style lighting package
  • Satin nickel hardware & fixtures throughout
  • Luxury vinyl plank flooring & 10-year warranty carpet (per plan)
  • Insulated overhead traditional garage door w/ windows, smart opener, camera & keyless entry
  • Front yard landscaping
  • … and much more!




Farmhouse

3

Bedroom

2

Bathroom

2 or 3

Garage

1,986

Sq ft

Unique Features

  • Farmhouse exterior design
  • Minimum 9-foot main floor walls (per plan)
  • Therma-Tru® fiberglass Craftsman 3-panel entry door with top lite
  • American Woodmark® Clayton 5-piece painted cushion-close cabinets
  • Quartz countertops with full tile backsplash in kitchen
  • Undermount fireclay apron kitchen sink
  • LG® energy-efficient smart stainless appliance package with refrigerator
  • Tapered cabinet range hood
  • Farmhouse Delta® kitchen & bathroom faucets
  • Tiled shower base & shower walls in primary bathroom
  • Craftsman 3-panel painted interior doors
  • Craftsman-style 2¼″ door casing w/ 3½head casing, 1¼cap & 5 floor base
  • Craftsman-style lighting package
  • Traditional gas fireplace with mantel & full-height stone surround
  • Matte black hardware & fixtures throughout
  • Prefinished hardwood flooring, tile flooring & 10-year warranty carpet (per plan)
  • Insulated overhead Craftsman-style garage door with windows, smart opener, camera & keyless entry
  • Front yard landscaping
  • … and much more!

Available Homes With the Beartooth Floor Plan

There are no currently available homes that match this floor plan.

Photo Gallery

SHOPPING FOR A NEW HOME?

Be the first to hear about new Gateway listings!

Sign up for our email list and we’ll send you our latest updates and new listings. Join today and stay up on all things Gateway!