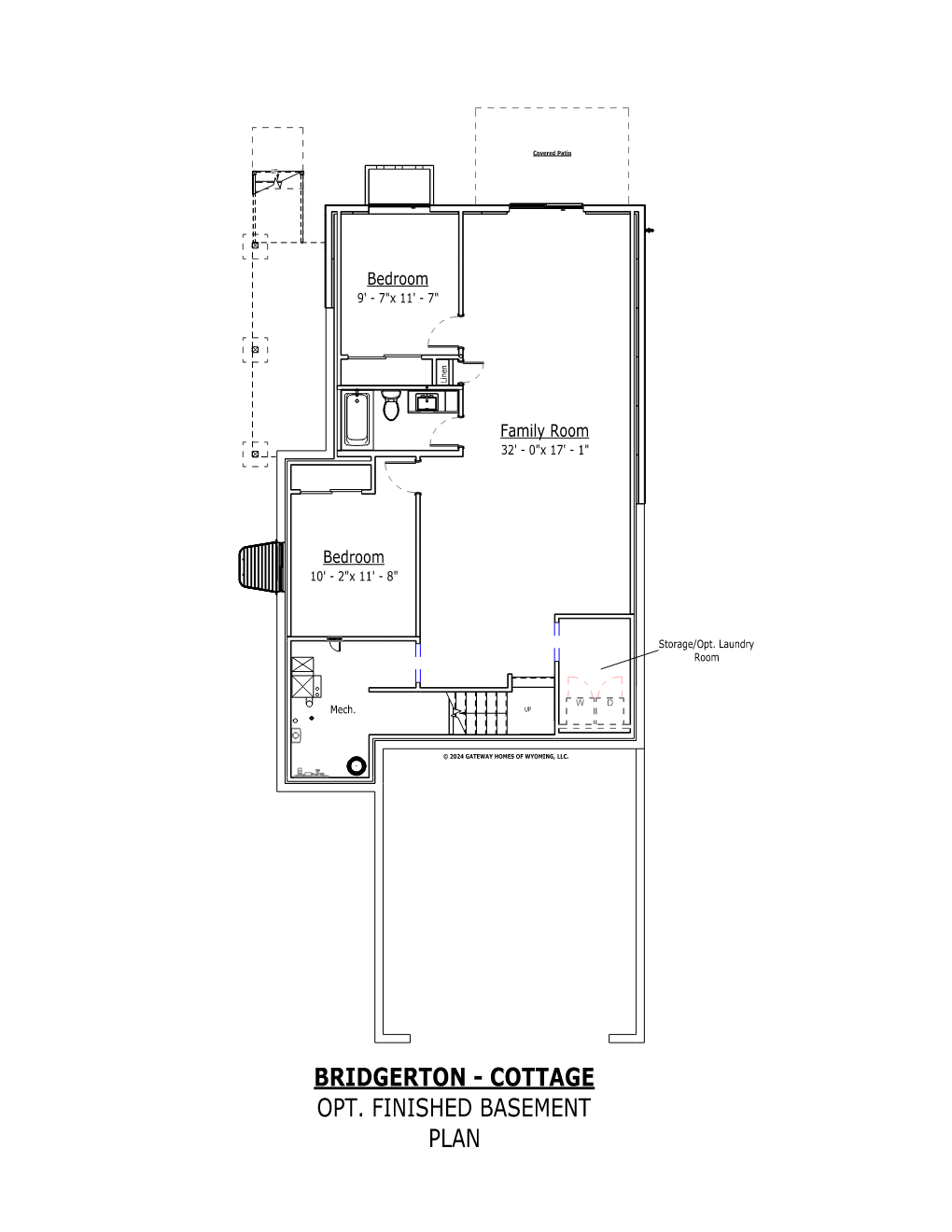
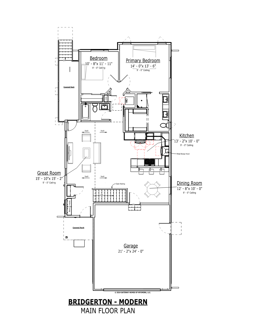
The Bridgerton Cottage (Available May 2026)

*Photos are of a previous build; colors and finishes may vary.*
The cozy and charming Bridgerton plan by Gateway doesn’t skimp on modern functionality! It features low-maintenance stucco exterior accents and a mono-slope roof pitch that gives this home a decidedly modern look. Inside, a high vaulted ceiling soars over the great room, kitchen and dining room, creating a wonderful sense of spaciousness. Quartz countertops and an energy-efficient LG® appliance package greet the home chef. An expanded owner’s suite at the rear of the home offers the perfect private escape. This property’s thoughtful design and fully landscaped yard on a walk-out lot make it ideal for both quiet evenings at home and entertaining. Estimated completion in May 2026.
The Bridgerton Cottage (Available May 2026)

Sign up for our email list and we’ll send you our latest updates and new listings. Join today and stay up on all things Gateway!